Cohesive Contemporary Views

A Contemporary Home Remodel On The Westside Of Ann Arbor

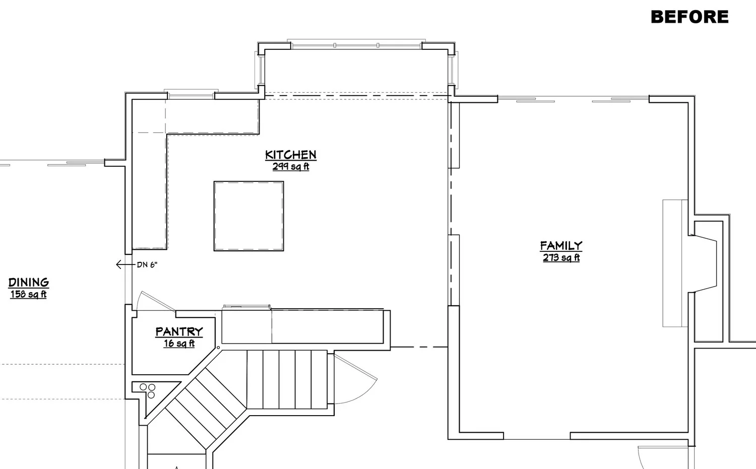
This First Floor Remodel with a New Floor Plan, Expanded Kitchen, Updated Living Room and Stairway

Return to interior remodels page
View Next Project
Schedule A Design Consultation

The Story

Client Remodeling Goals

The clients desired an enlarged kitchen to include more seating for entertaining and to take advantage of the view of the pond behind the house. They were also looking to improve the look and feel of their fireplace and living area adjoining the kitchen for a more cohesive first floor.

Design Vision

The original large space had awkward kitchen functionality. Creating a small addition allowed us to reorganize the space for entertaining and open up to the living room. There is beautiful walnut and glass paneling details at both fireplaces, as well as custom finishes throughout, including a crafted onyx column. The kitchen updates include 20 linear feet of lake views, and a floating island soffit with concealed exhaust fan.

Let's Talk! 734.761.8403

Pre-Existing Dining Room

Pre-Existing kitchen

Pre-Existing Floor Plan

Redesigned Floor Plan

Redesigned Kitchen Illustration

Redesigned Kitchen Illustration