Dramatic Home Theater

This Eberwhite Neighborhood Home Gets A Remodeled Basement Theater

This Basement Renovation resulted in a Home Theater, Wet Bar, Exercise Room and Children's Play Room

Return to interior remodels page
View Next Project
Schedule A Design Consultation

The Story

Client Remodeling Goals

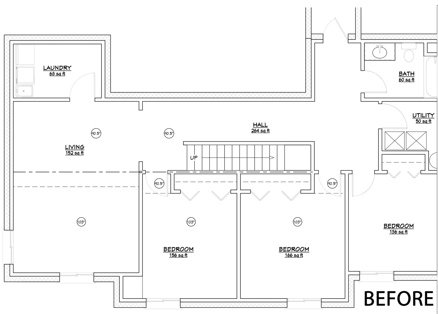
Our challenge was to take a traditional basement with three bedrooms and transform it into a large space that is flexible enough to entertain 20 people, but could also function comfortably for a family of three.

Design Vision

At the heart of the remodel is a home theater with a built in wet bar that features an ambient lighting system with music-responsive LEDs and shimmering fiber optic ceiling panels. Adjacent to the theater is a flex space that serves as an exercise area and playroom with ample built-in storage and open floor space. A large, sculptural soffit along with consistent contemporary detailing provides a real sense of drama, separating this project from the standard basement remodel.

Let's Talk! (734) 761-8403

Basement Before Image

Basement Before Image

Pre-Existing Floor Plan

Finished Basement Redesigned Floor Plan

Pre-Construction Illustration

Pre-Construction Illustration